Rue Archimède 5 - 7080 Frameries

About


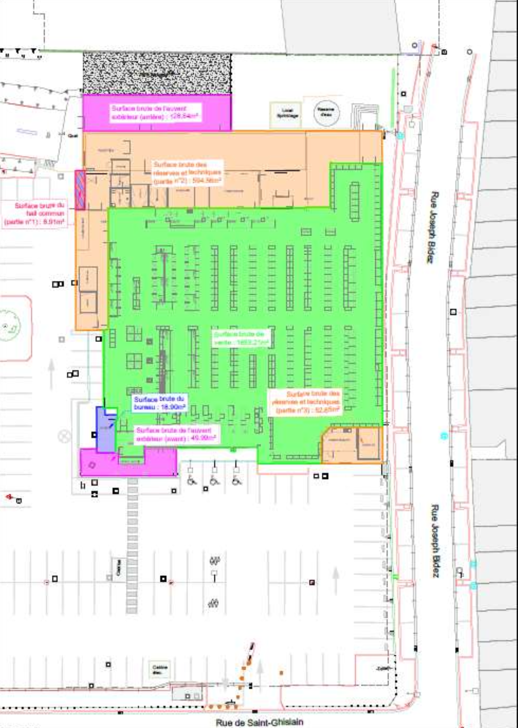
Situation : Surface commerciale, anciennement louée à Carrefour Market. Un grand parking est disponible à la clientèle. Superficie :    +/- 2.180m2 Loyer annuel :           16.250€ par mois, soit 195.000,-€ par an hors charges et P.I. Précompte immob. : 28.450€ (base 2025) à charge du locataire Bail commercial :      nouveau bail commercial (garantie bancaire 6 mois) Disponibilité :            à convenir

Rue Archimède 5 Frameries


+- 2.180m2   

Property ID : 251006

16.250€ / par mois
(Hors frais / Exclusief lasten)

Onze aanbiedingen zijn vrijblijvend en zonder enige verbintenis.
Nos offres sont non-contractuelles et sans aucun engagement.

CONTACT

Dany Nejman

+32 478 24 90 00

Victoria Uyttenhove

+32 493 587 588